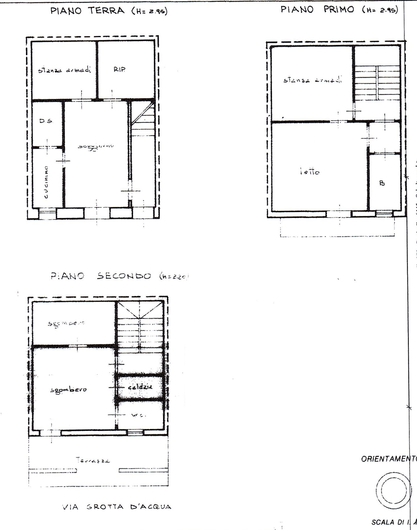
Vendesi in via Grotta D’Acqua, a pochi passi dal Genio Civile, casa singola disposta su 3 livelli: piano terra, primo e secondo.
Abitabile
Classe energetica: F 167,09 kWh/m2
Vendesi in via M. Caria, a pochi passi dal Liceo Classico, Casa bifamiliare composta composta da due appartamenti piano primo e secondo, terrazza e garage. L’immobile è così composto: -Appartamento piano primo mq 93 sup. catastale, composto da: camera matrimoniale, cameretta, cucina, soggiorno, bagno e lavanderia. Classe Energetica: E 299.42 kWh/m2 anno -Appartamento piano secondo […]
Vendesi casa indipendente in Via Mario Leggio, al centro storico di Ragusa. L’immobile di 70 mq è suddiviso in piano primo e piano secondo e risulta da ristrutturare. Classe Energetica: G 310,28 kWh/mq anno. Per maggiori informazioni chiamare allo 0932/641610.
RIBASSO DA € 275.000 Vendesi casa bifamiliare sita in via del Noce, zona viale dei Platani, composta da: -Garage, superficie lorda coperta di mq 118 sup. catastale -Appartamento 1° piano, mq 127 sup. catastale, abitabile, composto da: salotto, cucina abitabile, camera matrimoniale, cameretta, bagno, servizio e cavedio. Classe Energetica: D 47.32 kWh/mq anno -Appartamento 2° […]
RIBASSO DA € 75.000 Vendesi in via Minardi zona Centro storico, casa singola mq 250 circa, da ristrutturare con progetto approvato. L’immobile è composto da piano terra, primo e secondo con piccolo giardino. Per ulteriori informazione chiamare lo 0932/641610