Appartamento in villa bifamiliare, a pochi passi dalla clinica del Mediterraneo, Ragusa
RIBASSO € 180.000 Vendesi in via Ettore Fieramosca nei pressi della clinica del mediterraneo, Appartamento primo piano con posto auto...
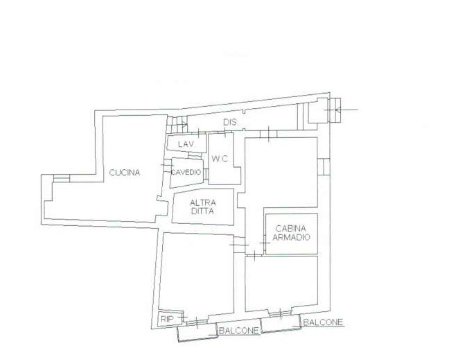
Vendesi a pochi passi dal Duomo di San Giorgio e dalle caratteristiche vie del centro storico a Ragusa Ibla, appartamento al piano rialzato con pertinenza piano seminterrato di circa 60 mq non comunicanti con ingresso indipendente.
L’immobile è ristrutturato ed è predisposto per un’eventuale casa vacanza ed è così suddiviso:
piano rialzato di circa 100 mq, composto da 3 camere, cucina abitabile con apertura sul cavedio, soggiorno, corridoio, disimpegno e un bagno con annessa lavanderia.
L’immobile è realizzato interamente in struttura portante di muratura ad eccezione delle ripartizioni interne che sono state ristrutturate mantenendo le caratteristiche tipiche delle abitazioni di Ragusa Ibla.
Classe Energetica E 68,37 kWh/mq anno.
Per ulteriori informazioni chiamare lo 0932/641610.
Affittasi in zona Viale dei Platani, ben servita a pochi passi dai principali servizi quali supermercato, farmacia, panificio, scuole, appartamento semiarredato ben rifinito, situato al 5° ed ultimo piano con copertura a tetto. Grazie alla sua doppia esposizione, l’appartamento risulta essere molto luminoso, L’immobile con una superficie di 130 mq circa, è composto da: ingresso, […]
Vendesi nei pressi dell’Avis di Ragusa, ampio appartamento panoramico in discrete condizioni situato al quarto ed ultimo piano di uno stabile dotato di ascensore. L’immobile, di circa 190 mq è composto da ampio ingresso, cucina, salone, studio, 3 camere da letto e servizi. Classe Energetica: G 170,47 kWh/mq anno. Per maggiori informazioni chiamare lo 0932/641610. […]
Scopri i nuovi appartamenti in vendita in fase di costruzione, progettati per offrire comfort, efficienza energetica e design moderno.Soluzioni abitative luminose, pensate per chi desidera abitare una casa le cui peculiarità sono quelle di una villa, ma all’interno di un quartiere pieno di servizi. Scopri anche i nuovi locali commerciali e uffici in fase di […]
Vendesi in Via Carducci, nel cuore della città, un luminoso appartamento di circa 216 mq, situato al primo piano di un edificio dotato di ascensore e di un’ampia terrazza. L’immobile offre ambienti molto ampi ed è composto da 8 vani più servizi. Infine vi è anche un piano interrato condominiale. Classe Energetica: F 114,01 kWh/mq […]