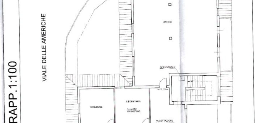
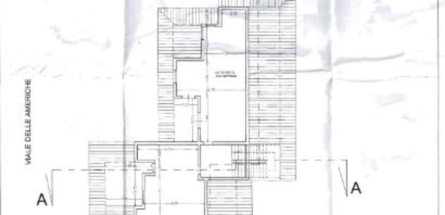
Vendesi, in Viale delle Americhe Ufficio- Appartamento con ingresso indipendente composto da 1° piano mq 270 circa e mansarda mq 130 circa.
Climatizzato con ottime finiture e Garage di pertinenza.
Gli appartamenti possono essere frazionati in diverse unità immobiliari:
-Primo piano appartamento, mq 135
-Primo piano ufficio, mq 135, open space
-Mansarda, mq 130
-Garage
APE IN FASE DI RILASCIO
PER ULTERIORI INFORMAZIONI CHIAMARE LO 0932/641610
Affittasi in zona Viale dei Platani, ben servita a pochi passi dai principali servizi quali supermercato, farmacia, panificio, scuole, appartamento semiarredato ben rifinito, situato al 5° ed ultimo piano con copertura a tetto. Grazie alla sua doppia esposizione, l’appartamento risulta essere molto luminoso, L’immobile con una superficie di 130 mq circa, è composto da: ingresso, […]
Vendesi nei pressi dell’Avis di Ragusa, ampio appartamento panoramico in discrete condizioni situato al quarto ed ultimo piano di uno stabile dotato di ascensore. L’immobile, di circa 190 mq è composto da ampio ingresso, cucina, salone, studio, 3 camere da letto e servizi. Classe Energetica: G 170,47 kWh/mq anno. Per maggiori informazioni chiamare lo 0932/641610. […]
Scopri i nuovi appartamenti in vendita in fase di costruzione, progettati per offrire comfort, efficienza energetica e design moderno.Soluzioni abitative luminose, pensate per chi desidera abitare una casa le cui peculiarità sono quelle di una villa, ma all’interno di un quartiere pieno di servizi. Scopri anche i nuovi locali commerciali e uffici in fase di […]
Vendesi in Via Carducci, nel cuore della città, un luminoso appartamento di circa 216 mq, situato al primo piano di un edificio dotato di ascensore e di un’ampia terrazza. L’immobile offre ambienti molto ampi ed è composto da 8 vani più servizi. Infine vi è anche un piano interrato condominiale. Classe Energetica: F 114,01 kWh/mq […]