Appartamento in villa piano terra a pochi passi dalla clinica del Mediterraneo. Ragusa
RIBASSO € 250.000 Vendesi in via Ettore Fieramosca nei pressi della clinica del mediterraneo, appartamento piano terra e scantinato con...
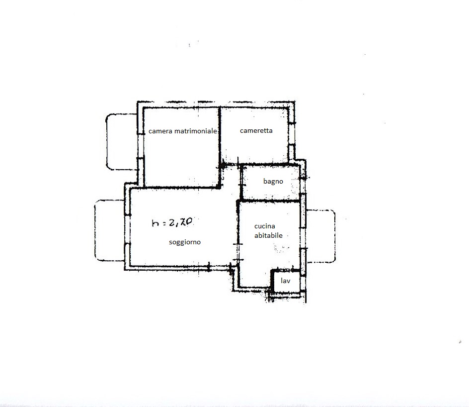
Vendesi in via Solunto, a pochi passi da via Paestum. Appartamento piano primo con posto auto in cortile.
L’immobile di mq 85 circa è composto da:
soggiorno, cucina abitabile, lavanderia, due camere da letto e bagno.
stato abitabile.
Classe Energetica: E 213.72 kWh/mq anno
Per ulteriori informazioni chiamare lo 0932/641610
Affittasi in zona Viale dei Platani, ben servita a pochi passi dai principali servizi quali supermercato, farmacia, panificio, scuole, appartamento semiarredato ben rifinito, situato al 5° ed ultimo piano con copertura a tetto. Grazie alla sua doppia esposizione, l’appartamento risulta essere molto luminoso, L’immobile con una superficie di 130 mq circa, è composto da: ingresso, […]
Scopri i nuovi appartamenti in vendita in fase di costruzione, progettati per offrire comfort, efficienza energetica e design moderno.Soluzioni abitative luminose, pensate per chi desidera abitare una casa le cui peculiarità sono quelle di una villa, ma all’interno di un quartiere pieno di servizi. Scopri anche i nuovi locali commerciali e uffici in fase di […]
Vendesi in Via Carducci, nel cuore della città, un luminoso appartamento di circa 216 mq, situato al primo piano di un edificio dotato di ascensore e di un’ampia terrazza. L’immobile offre ambienti molto ampi ed è composto da 8 vani più servizi. Infine vi è anche un piano interrato condominiale. Classe Energetica: F 114,01 kWh/mq […]
Vendesi a pochi passi dal Duomo di San Giorgio e dalle caratteristiche vie del centro storico a Ragusa Ibla, appartamento al piano rialzato con pertinenza piano seminterrato di circa 60 mq non comunicanti con ingresso indipendente. L’immobile è ristrutturato ed è predisposto per un’eventuale casa vacanza ed è così suddiviso: piano rialzato di circa 100 […]